下載app免費領取會員
來源丨益埃畢教育
01、在一些需要參變的族里,有時需要模型文字的位置隨參數進行變動。如下圖,希望做出來的“消火栓”模型文字能在寬度、高度參數進行參變時,文字位置能固定保持居中放置。

02、當添加完相關參數,并且對文字位置進行對齊鎖定之后,修改“寬度”及“高度”參數值進行調試,總是提示“不滿足限制條件”,如下圖所示。

03、遇到這種問題可通過嵌套的方式解決。如下圖所示,使用“基于面的公制常規模型”族樣板,在“參照標高”平面放置模型文字,相關設置(文字大小,字體等)調整好后將需要參變的位置與參照平面進行鎖定。

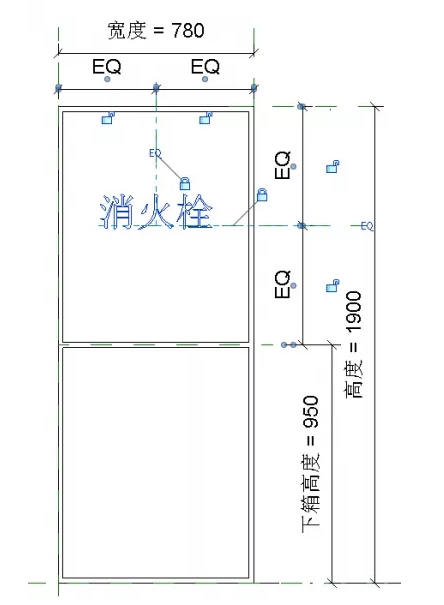
04、完成后將其載入到所需要添加的族中,放置到對應位置并且進行鎖定,如下圖所示。之后再進行調試,模型文字即可正常參變。

意義:通過學習上述文章,了解到對模型文字的參數控制,以及嵌套族的使用,方便建模。
-END-
Revit中文網作為國內知名BIM軟件培訓交流平臺,幾十萬Revit軟件愛好者和你一起學習Revit,不僅僅為廣大用戶提供相關BIM軟件下載與相關行業資訊,同時也有部分網絡培訓與在線培訓,歡迎廣大用戶咨詢。
網校包含各類BIM課程320余套,各類學習資源270余種,是目前國內BIM類網校中課程最有深度、涵蓋性最廣、資源最為齊全的網校。網校課程包含Revit、Dynamo、Lumion、Navisworks、Civil 3D等幾十種BIM相關軟件的教學課程,專業涵蓋土建、機電、裝飾、市政、后期、開發等多個領域。
需要更多BIM考試教程或BIM視頻教程,可以咨詢客服獲得更多免費Revit教學視頻。
本文版權歸腿腿教學網及原創作者所有,未經授權,謝絕轉載。
上一篇:Revit技巧 | revit怎樣局部渲染?關于在revit中如何使用渲染技巧
推薦專題