下載app免費領取會員
來源丨益埃畢教育
發布丨EaBIM_工號07
1、雙擊運行revit程序,打開revit后出現如圖所示的界面,點擊族下面的新建按鈕,如圖所示

2、點擊新建按鈕彈出的對話框中選擇創建族模板的公制常規模型,然后點擊打開,如圖所示:

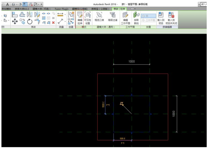
3、點擊創建按鈕---參照平面---點擊拾取線---在偏移量欄位里輸入數量(如:500)然后鼠標移動到原有的參照線上,它會以原有的參照線為中心線,復制相同長短的參照線,鼠標指向那條參照線,它就以那條參照線為中心線來復制,如圖所示:

4、把所有的參照線畫完,然后點擊注釋里的對齊命令,把參照線都標注上距離,如圖所示:

5、點擊創建命令---拉伸命令---選擇矩形,畫一個正方形,然后點擊對號完成,如圖所示:


6、點擊三維視圖按鈕,調整為著色出現以下界面,如圖所示:

7、選中物體,在深度里改數值,能改變它的高度,如圖所示:

8、視圖轉到參照標高,選中物體,然后點擊編輯拉伸按鈕,如圖所示:

9、在偏移量欄位上填寫數值(如:200),再點擊拾取線命令,然后鼠標點擊空白處一下,然后鼠標箭頭放到線上出現虛線后點擊Tab鍵就會復制一個正方形,點擊對號就完成了,點擊三維視圖出現以下界面,如圖所示:


10、點擊圖中的物體,選擇編輯拉伸,刪除里面的圖形線,然后點擊三維視圖按鈕,如圖所示

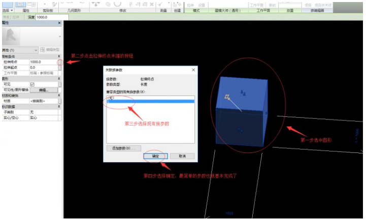
11、在三維圖中標注,選擇對齊尺寸標注,然后選擇一個面,再選擇另一個面,就完成了在三維視圖中添加標注,在三維視圖中添加標注的用途是通過標注控制參數,如圖所示:


12、選中數字,然后點擊標簽欄位的添加參數,出現以下參數屬性對話框,在名稱欄位上填寫參數的名稱(長度:L)點擊確定,第一個長度的參數就完成了,如圖所示:


13、給第二個長度添加參數,可以選中數字,然后在標簽欄位哪里選中剛剛編輯的參數,另一個長度參數就完成了,如圖所示:

14、立體圖形高度添加參數的方法:選中圖形,點擊拉伸終點后面的按鈕,就會出現以下對話框,選擇族現有參數(L),這樣的話,只要一方數字改動,全部都會跟著改動,如圖所示:

-END-
Revit中文網作為國內知名BIM軟件培訓交流平臺,幾十萬Revit軟件愛好者和你一起學習Revit,不僅僅為廣大用戶提供相關BIM軟件下載與相關行業資訊,同時也有部分網絡培訓與在線培訓,歡迎廣大用戶咨詢。
網校包含各類BIM課程320余套,各類學習資源270余種,是目前國內BIM類網校中課程最有深度、涵蓋性最廣、資源最為齊全的網校。網校課程包含Revit、Dynamo、Lumion、Navisworks、Civil 3D等幾十種BIM相關軟件的教學課程,專業涵蓋土建、機電、裝飾、市政、后期、開發等多個領域。
需要更多BIM考試教程或BIM視頻教程,可以咨詢客服獲得更多免費Revit教學視頻。
本文版權歸腿腿教學網及原創作者所有,未經授權,謝絕轉載。
上一篇:Revit技巧 | Revit建模培訓教程:關于Revit如何創建不基于主體但有坡度的欄桿
下一篇:Revit技巧 | CAD怎么轉Revit?CAD地形圖如何轉換成Revit地形?
推薦專題